台北市華廈

呂茂奕房地產服務網,僑茂不動產幸福團隊,僑茂不動產新生營業處

台北市華廈|金矽谷No26內湖指標級企業總部地標成功路新湖一路北士科串聯

金矽谷 No.26|內湖指標級企業總部地標
列印
  • 售18億9000萬
    1. 案號:No.26
    2. 類型:華廈_廠辦_商辦
    3. 總登記坪數:
    4. 每坪單價:
    5. 地址:台北市內湖區新湖一路整棟
    1. (煩請告知聯絡人,您是在House-Info房屋網看到廣告,感恩幫忙)
    2. 0968-997-175
    1. 市話:
    2. 公司名稱:
    3. 公司地址:
    金矽谷 No.26|內湖指標級企業總部地標-QR CODE 我要留言 加LINE好友
物件介紹
詳細資料
銷售狀態
帶看中
格局
開放格局
屋齡
預售屋
公設比
待確認
車位
坡道平面
無障礙環境
所在樓層
1樓~8樓/8樓
管理費
未定
管委會
中庭
沒有
電梯
面前道路
20米
邊間
是否凶宅
不是
瀏覽人次
596人次
周邊環境
生活機能
美聯社/成美左岸河濱公園/Costco、家樂福、CityLink 商圈
鄰近交通
捷運:Y35西松站(施工中) 公車:行善路潭美路口站
鄰近地標
舊宗路麥當勞
公園綠地
文心公園
鄰近學區
潭美國小,三民國中
捷運站
西松
坪數說明
建物登記總坪數
2086.92
主建物
1121.77
附屬建物
36.13
公共設施
929.09
土地登記總坪數
450.16
特色描述

🏢【金矽谷 No.26|內湖指標級企業總部地標】



一、基地與區位優勢

🏡座落於內湖「工三特區」核心軸帶,鄰近環東大道、提頂大道與內湖科技園區主幹道,為北市第三種工業區(工三)廠辦用地

捷運港墘站/昆陽站/Y35與SB07捷運站預定地、內湖交流道、環東大道,串聯南港、信義計畫區與松山機場商圈,交通四通八達。



二、產品規格與建築亮點

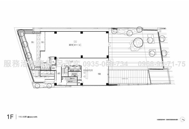
🏡樓層規劃:地上8層,地下 4 層  一層兩戶

🏡可售樓層: 全棟預售中

🏡單層面積:約 83~275 坪,可彈性分層購買或整層整棟規劃

🏡使用分區:第三種工業區(可作研發、廠辦、商務辦公、倉儲物流)

🏡車      位:62個可售車位/4個裝卸車位

🏡結構規劃:CNS SN等級耐震鋼材鋼骨制震結構,挑高大氣,承重設計優於一般辦公產品

🏡建築設計:外觀採玻璃帷幕立面搭配金屬飾板,兼具現代感與節能環保效能



三、功能定位與空間彈性

💼 企業總部首選

🏡可整層設立企業總部,打造自有品牌大樓門面

🏡單層 80 坪起,符合大型部門或跨國企業分區辦公需求

🏡可結合研發、展示、會議、辦公一體化空間



🏭 廠辦使用彈性大

🏡第三種工業區用途完整,可核准設立登記研發、倉儲、製造相關公司

🏡層高充裕,便於設置實驗室、輕量製程、伺服主機或物流配套

🏡空間可依企業需求隔間、整合貨梯與卸貨動線



四、景觀與生活機能

🏡緊鄰「成美左岸河濱公園」,部分樓層享有開闊水岸景觀

🏡周邊生活機能成熟:7-Eleven、星巴克、餐飲聚集、健身中心

🏡鄰近內湖 Costco、家樂福、CityLink 商圈,企業員工生活便利



五、投資與發展潛力

🏡內湖工三區可供買售的新屋稀少,自用與投資雙利基

🏡區內多家上市櫃企業總部進駐,形成聚落效應

🏡高車位比+整層彈性規劃=優質企業自購產品

🏡預期南港科學園區與北士科串聯效應,將持續帶動


內湖廠辦價值

💡 「坐擁成美左岸,打造企業專屬地標。」

🏢 「整層規劃・車位充足・結構安全・視野開闊」

🚀 「工三核心・研發總部新指標・金矽谷 NO.26」

👉🏽有需求的您~歡迎來電洽詢預約看屋!!謝謝您!

☎️洽詢預約專線:0935-009-734 呂先生

🏡我們將竭誠為您服務,讓您實現居住夢想,開啟全新生活!🏡✨



           經紀人證照字號: (91)北縣字第583號

           僑茂房屋仲介股份有限公司

            珍惜所託 善德傳家

         ~僑茂不動產 銷售 租賃中 物件網站~

  https://www.cmhousing.com.tw/agent/0935009734

歡迎您加入FB~築夢安居交流社團~ PO文分享 討論 免費刊登廣告 創造多贏商機!! 

https://www.facebook.com/groups/632016442596258 

LINE>>> 電話搜尋 0935009734 加好友~感謝您!! 

內湖華廈-0
內湖華廈-0
內湖華廈-1
內湖華廈-1
內湖華廈-2
內湖華廈-2
內湖華廈-3
內湖華廈-3
內湖華廈-4
內湖華廈-4
內湖華廈-5
內湖華廈-5
內湖華廈-6
內湖華廈-6
內湖華廈-7
內湖華廈-7
內湖華廈-8
內湖華廈-8
內湖華廈-9
內湖華廈-9
內湖華廈-10
內湖華廈-10
內湖華廈-11
內湖華廈-11
內湖華廈-12
內湖華廈-12
內湖華廈-13
內湖華廈-13
內湖華廈-14
內湖華廈-14
物件留言
請注意,如果您詢問的內容與物件不相符合或是廣告,經過審核,系統將會直接刪除您的發問內容
等待圖示
相似物件
免責聲明:House-Info房屋網平台系統為租用式開放房屋買賣網站建置平台,僅提供會員查詢-台北市,內湖區,華廈-等房屋資訊參考,並不涉入任何諮詢、交易。 物件(服務)聯絡人公佈的資訊、文字、照片、圖形、產權、廣告內容、或其他資料若有不實或違法情事,或與客戶聯絡交易過程中若衍生民事或刑事等法律問題,皆與House-Info房屋網站無關,所有商標、文章、名稱等版權,皆歸屬原著作者所有!